【室内设计】2017年02月15日CAD基础公开课内容

授课老师:张情
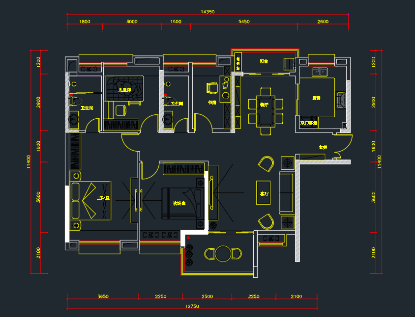
授课内容:室内平面图绘制
学习要点:1.室内户型分析
2.方案设计
3.平面布局问题
授课时间:20:00-21:00
上课地址:http://www.xsteach.com/live/course/view?id=189
正序查看
暂无评论

授课老师:张情
授课内容:室内平面图绘制
学习要点:1.室内户型分析
2.方案设计
3.平面布局问题
授课时间:20:00-21:00
上课地址:http://www.xsteach.com/live/course/view?id=189