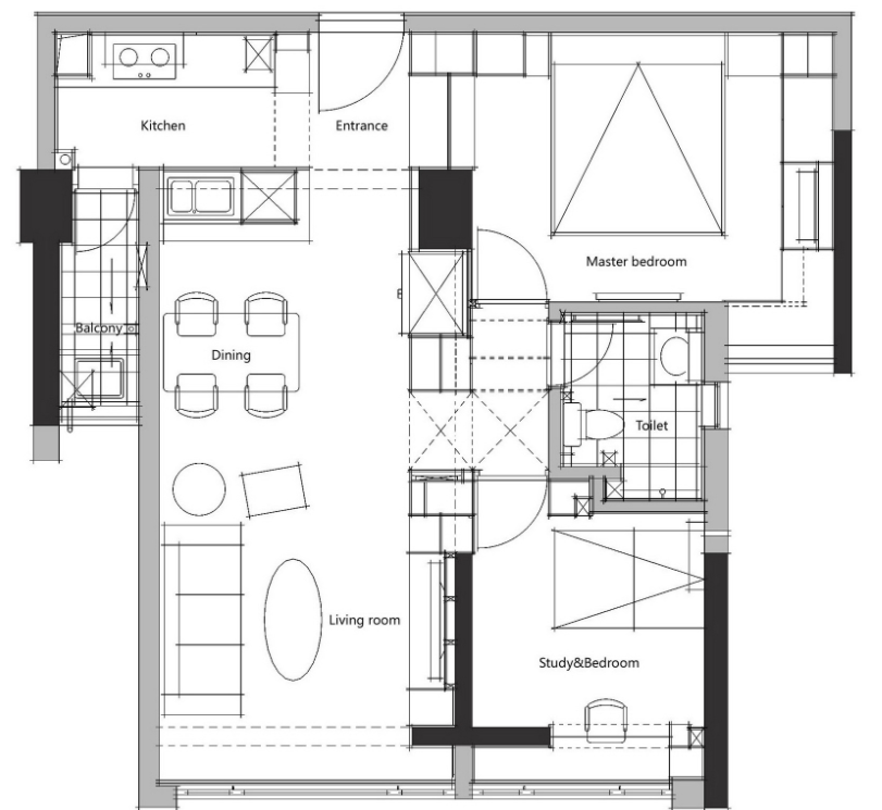
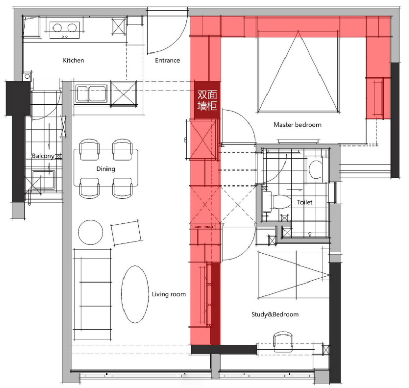
【室内设计公开课】5月 12日14日公开课

头像
陈先平
2021-05-10 13:18:48

上课时间: 5月12日公开课

授课老师:贾俊钢

课程教室:https://beta.xsteach.com/course/live/10299

9b87e1a6b118ff24a1546d446b2bb62a001.jpg

9362c531bba09492234ebff9838760e3001.jpg

6220039a5e15f59fb822c759660fff4f001.jpg

2b7cc93afa923c28525fa27bff642125001.jpg

0b05eb4044c3b818113e7580cdc1b6a6001.jpg

f6a62afac92b0a4d9c161e109c52ff6e001.jpg

d037559fa2396056228e19aee8b5cf40001.jpg

ba13ba077bd30bedcefcc0b8ad31eb38001.jpg

74c47e1156c52ebb4fd2a72cdb8f1d52001.jpg

f3235d415601c2ccf3907ad3d495a899002.png

addc3ff2b6cc37439cd2052edef3ad1c002.png

ba0d6fc7eeea903500a1bbac000b71f5002.png

6705f178f42d924aa61c0dfd8759bc89001.jpg


全部回复
正序查看
空数据
暂无评论